Housing Prototype | Modular
OMNI HOUSING – TATA TISCON
Omni housing represents the continuous process of evolution and transformation within the lifespan of an individual and his/ her family. It allows for designing a future that will be different from the past and the present, thus creating the perfect fit at any given time in the family’s life cycle.
The challenge in planning to build a small home is to design a house that meets a family’s complex needs. Flexibility gives the user multiple choices for change. The house can then be interpreted as a machine that allows multiple possibilities based on various permutations for the changes taking place in the family and their needs. The need for flexibility is an important concern in the design of such housing. Flexibility refers to the idea of accommodating change over time. The urban milieu is influenced by the possibilities that a variety of houses can be designed in a neighborhood, which reflects the individuality of a family.

Architectural Solution
At the neighborhood level, the design adopted here reduces the street cover, hence making residential land more productive and allowing for cul-de-sacs, which provide vehicular parking, thereby allowing the street to work efficiently and creating an effective streetscape

Permutations in expansion model
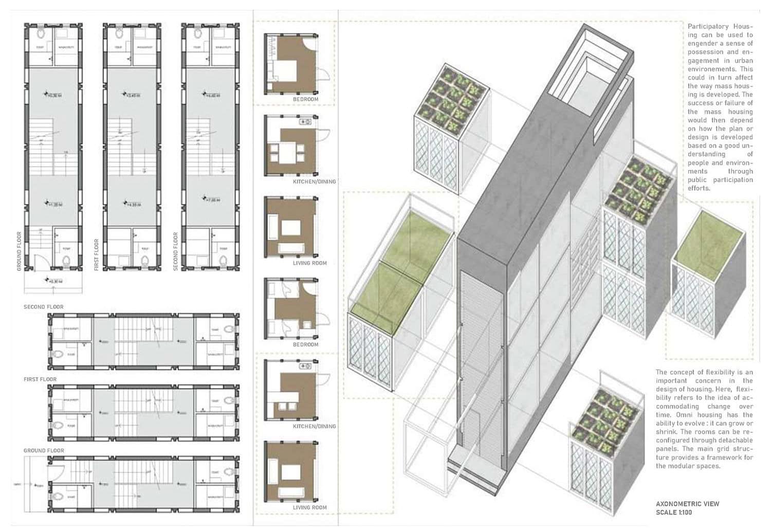
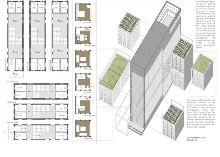
The concept of flexibility is an important concern in the design of housing. Here, Rexibility refers to the idea of accomodating change over time. Omni housing has the ability to evolve it can grow or shrink. The rooms can be reconfigured through detachable panels. The main grid structure provides a framework for the modular spaces

Axonometric View
Participatory Housing can be used to engender a sense of possession and engagement in urban environments. This could in turn affect the way mass housing is developed The success or failure of the mass housing would then depend on how the plan or design is developed based on a good understanding of people and environments through public participation efforts

Variation 1
Consider two variations in housing: one where a single unit is adapted to accommodate an extended family spanning three generations, and another where the household composition changes over time as some residents move out. In both cases, the design evolves to provide comfortable and flexible living accommodations tailored to the changing needs of the residents.

Variation 2







