Institutional | Healthcare
Urban Health Training Centre
Urban Health Training Centre (UHTC) is a health training institution that is associated with the Medical College. They are primarily established to provide hands-on training to medical students in the field of community medicine, specifically in urban areas. This Centre provides basic health care services to the surrounding urban population, allowing students to get a practical experience in primary health care in the context of Mumbai.

Isometric view of the training centre
In the context of Mumbai, given that it is a major metropolitan city in India with several medical colleges, The training centers serve the dual purpose of imparting practical training to medical and paramedical students and providing outpatient services, antenatal and postnatal care, immunization and health education to the urban poor and other residents of the area.

Core Concepts
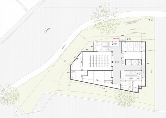
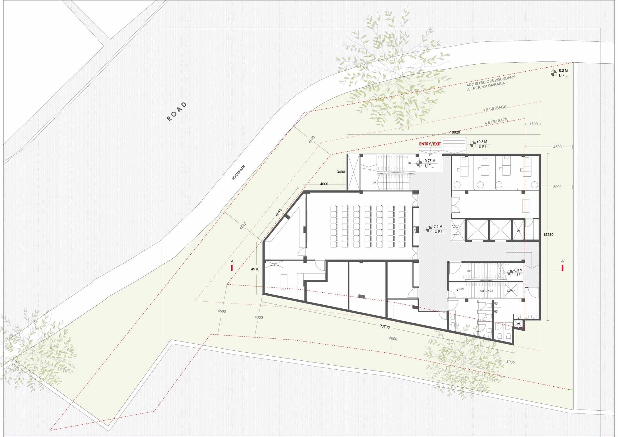
Urban Health Training center located is a corner plot of the Somaiya Vidyavihar campus consisting of facilities such as a seminar room, general and specialized OPD amongst others like immunization room & Hirkanikaksh. The facility also accommodates a day ward, library and common staff spaces

Ground Floor Plan
An inviting arrival is created by visually elevating the upper ground floor. The building’s porous nature on the upper floors creates an engaging feature with the surrounding context. The transparent nature of the vertical circulation animates the front facade of the building and activates its foreground.

Front Elevation















